Проект этого солнечного дома площадью 74,8 м² в стиле американского ранчо выполнен архитектором д-ром Оуэном Гейгером (Owen Geiger).

Южный фасад
Конструкция
В зависимости от региона строительства стены дома могут возводиться:
- из мешков с землёй — землебитная строительсная технология Еarthbags;
- из соломенных блоков (Straw bale).
Планировка
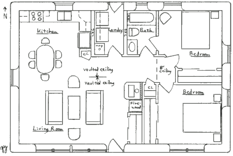
В доме располагаются: огромная общая комната со сводчатым потолком, которая поделена на зоны гостиной и кухни-столовой; 2 спальни; санузел; прачечная.

План
Отопление
Увеличенная площадь остекления южного фасада — система пассивного солнечного отопления с прямым обогревом (Direct Gain).
Дополнительным источником отопления дома является установленная в гостиной дровяная каминопечь.
Комментарии