Компактный двухэтажный загородный дом был спроектирован американским архитектором д-ром Оуэном Гейгером (Owen Geiger).

Внешний вид
Конструкция
В зависимости от региона строительства стены дома могут возводиться:
- из мешков с землёй (технология Еarthbags);
- из соломенных блоков (Straw bale).
Энергосбережение
В более холодных регионах большую открытую террасу можно остеклить, преобразовав в солнечную теплицу (Isolated Gain), что позволит снизить отопительную нагрузку и получить дополнительное помещение.
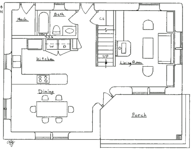
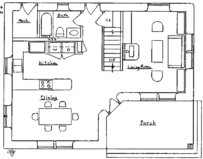
Планировка
На первом этаже коттеджа расположены: двухсветная гостиная, кухня-столовая, санузел.

План первого этажа
На втором этаже коттеджа расположены: 2 спальни, санузел.

План второго этажа
Отопление
В гостиной дома установлена отопительная дровяная печь.
Комментарии