Проект очень экономичного и комфортабельного маленького землебитного дачного дома выполнил архитектор д-р Оуэн Гейгер (Owen Geiger).

Содержание
Конструкция
Для возведения стен дома была выбрана землебитная строительная технология Еarthbags.
Планировка
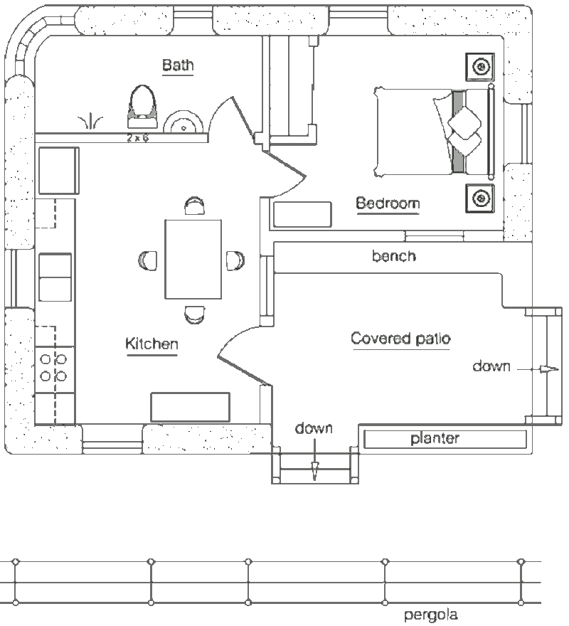
Площадь жилища составляет 31,9 м².
В доме расположены: кухня-столовая, спальня, санузел. Вход в дом выполнен с уютной террасы.

План
Защита от перегрева
Перед южным фасадом дачи находится пергола, защищающая помещения от перегрева в знойный летний полдень.
Комментарии