Землебитный дачный дом площадью 31,9 м² спроектирован архитектором д-ром Оуэном Гейгером (Owen Geiger).Дом очень экономичен и комфортабелен.

Внешний вид
Конструкция
Для возведения стен дома была выбрана землебитная строительная технология Еarthbags.
Планировка
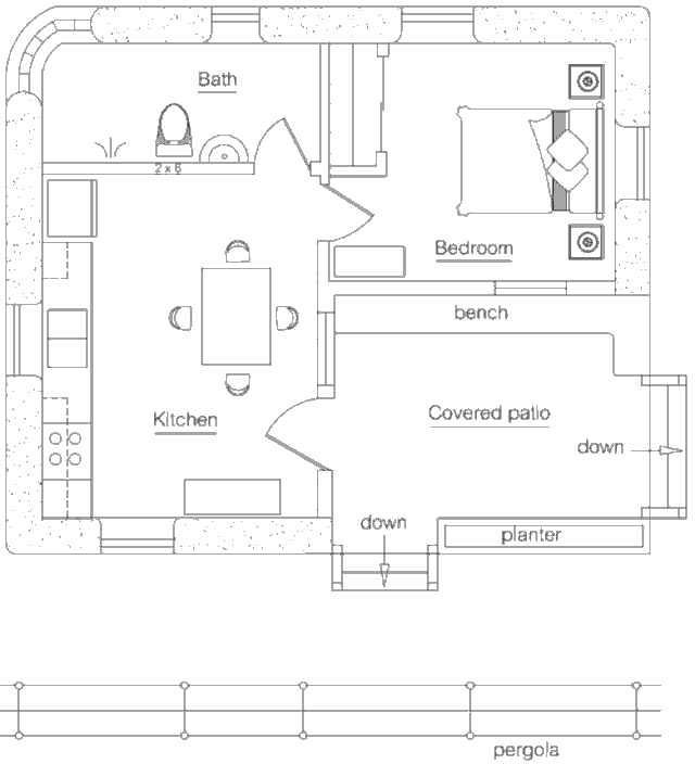
В доме расположены: кухня-столовая, спальня, санузел. Вход в дом выполнен с уютной террасы.

План
Перед южным фасадом дачи находится пергола, защищающая помещения от перегрева в знойный летний полдень.
Комментарии