Землебитный дом со встроенным гаражом, спроектированный американским архитектором д-ром Оуэном Гейгером (Owen Geiger), имеет простой план и широкие свесы крыши.

Внешний вид
Технология строительства
Для возведения стен этого небольшого дома запланировано использование технологии earthbags.
Планировка
Первый этаж дома площадью 66,4 м² занимают: гараж на 2 автомобиля; мастерская с кладовой (возможно также устройство постирочной).

План первого этажа
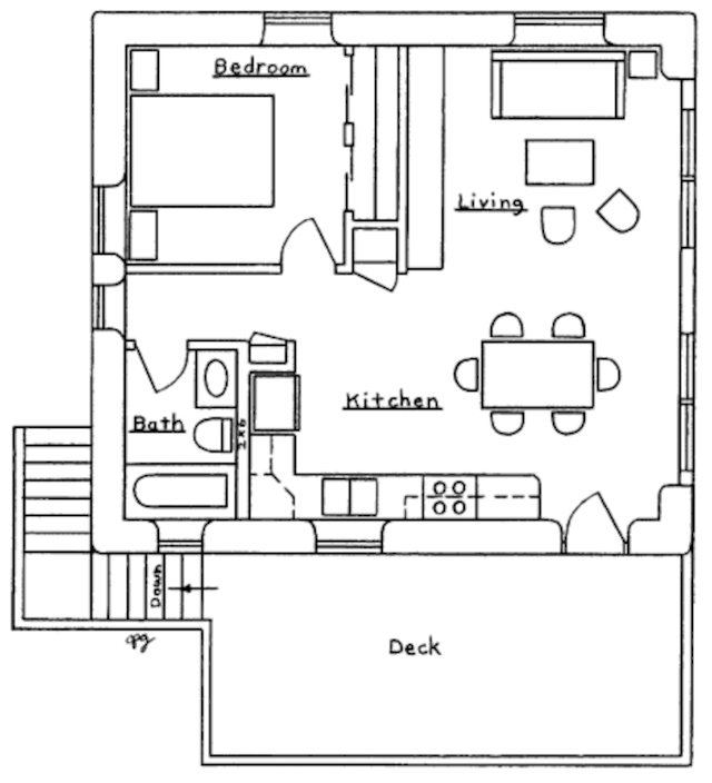
На втором этаже дома площадью 48,8 м² находятся: кухня-столовая; гостиная; спальня; совмещённый санузел. Вход устроен с большой террасы.

План второго этажа
Комментарии