Проект одноэтажного пассивного солнечного дома площадью 93,2 м² был разработан архитектурной фирмой Integral Design Studio.

Внешний вид
Энергосбережение
Стены солнечного дома построены из соломенных блоков по технологии Straw Bale,. Огромное термическое сопротивление таких стен позволило значительно сократить расходы на отопление.
Планировка
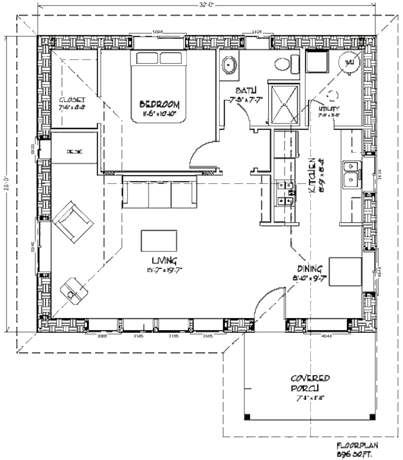
В этом комфортабельном солнечном доме размещены: большая гостиная, столовая, кухня, спальня с гардеробной комнатой, ванная комната, помещение с инженерным оборудованием.

План
Отопление
Для отопления дома обычно достаточно солнечного тепла, поступающего через окна южного фасада, имеющие увеличенную площадь (Direct Gain), а также тепла, производимого внутренним оборудованием.
При необходимости дополнительным источником тепла может является каминопечь, установленная в гостиной.
Массивная бетонная плита пола позволяет стабилизировать внутреннюю температуру.
Комментарии