Компактный двухэтажный солнечный дом Strawbale Retreat 1100 площадью 106,8 м² был спроектирован фирмой Integral Design Studio для строительства из соломенных блоков (Straw bale).

Южный фасад

Западный фасад
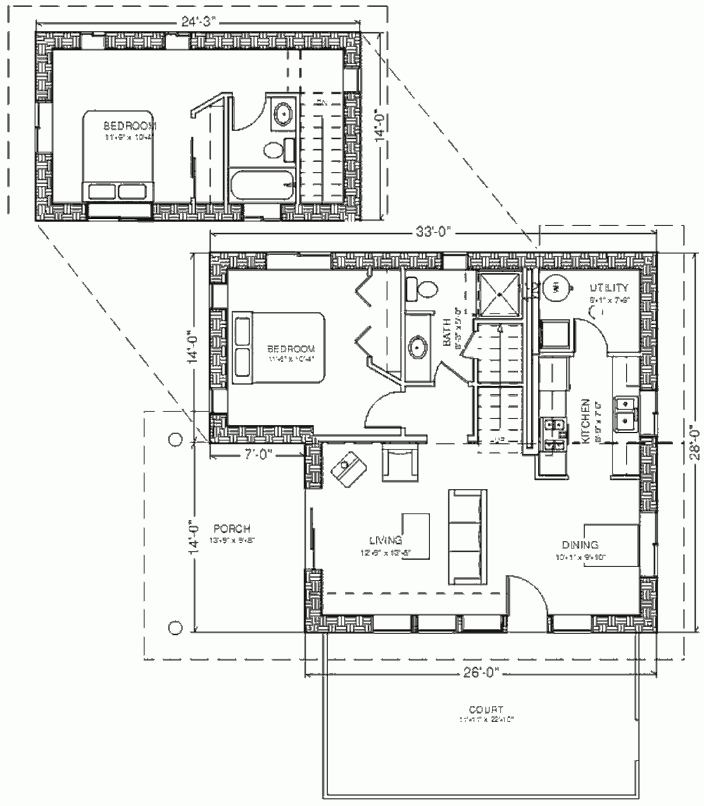
Планировка
На первом этаже расположены: большая общая комната, разделённая на зоны гостиной и столовой; кухня; помещение с инженерным оборудованием; спальня; ванная комната. Из общей комнаты через остеклённую дверь можно попасть в небольшой дворик.

Поэтажный план
На втором этаже дома находятся: спальня, ванная комната.
Отопление
Увеличенные окна южного фасада выполняют функцию пассивной солнечной системы отопления (Direct Gain).
Установленная в гостиной каминопечь используется в качестве дополнительного источника тепла.
Защита от перегрева
Большой навес над террасой защищает гостиную от перегрева во вторую половину дня.
Комментарии