Этот простой в плане одноэтажный пассивный солнечный дом из соломенных блоков площадью 178,4 м² был спроектирован для Тусона (Аризона, США).

Внешний вид
Возведение стен дома предполагается с использованием строительной технологии Straw Bale.
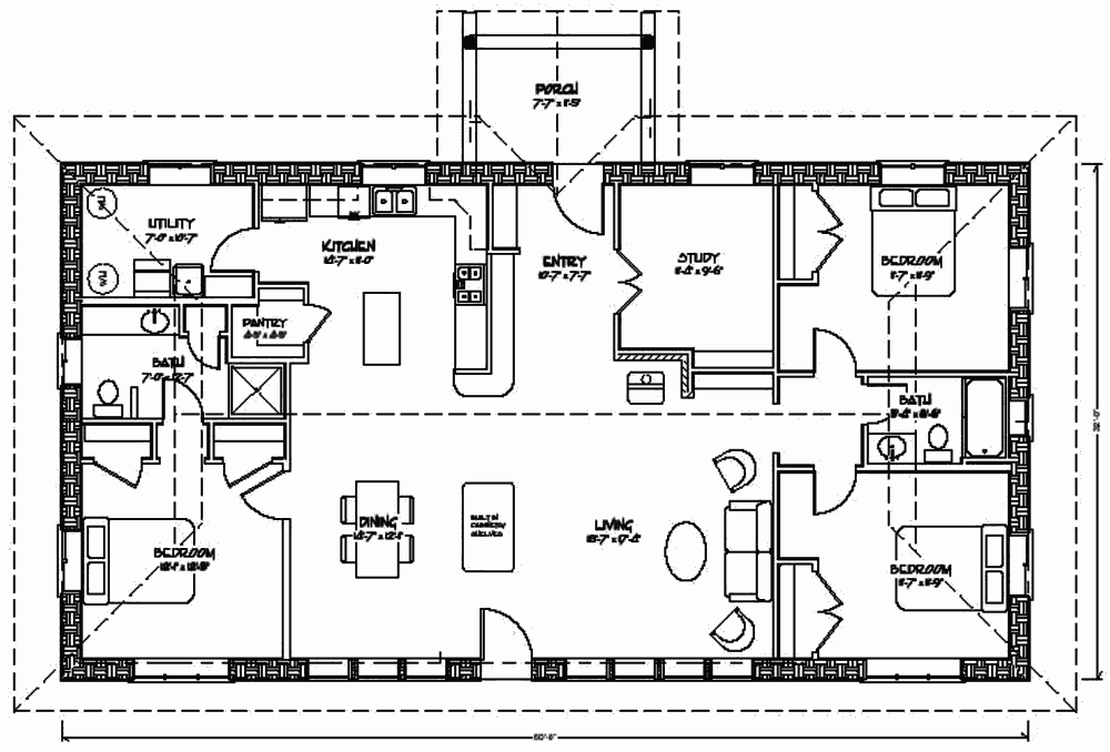
Планировка
В этом небольшом доме расположены: большая общая комната, зонированная на гостиную, столовую и большую кухню с кладовой; 3 спальни; 2 ванных комнаты; офис; постирочная.

План

Интерьер
Система отопления
Системой отопления дома предусмотрено пассивное солнечное отопление через окна южного фасада увеличенной площади (Direct Gain).
Недостаток тепла солнца, поступающего через остекление южного фасада в зимнее время, компенсируется активной жидкостной системой солнечного отопления (на южном скате крыши установлены 7 гелиоколлекторов).

Южный фасад

Северный фасад
В зимние пасмурные дни, бывающие достаточно редко в этом регионе, дополнительным источником отопления солнечного дома служит дровяная каминопечь, установленная в гостиной.
Комментарии