Двухэтажный пассивный солнечный дом площадью 133,2 м² был специально разработан для строительства на земельном участке, не имеющем никаких коммуникаций.

Внешний вид
Энергосбережение
Проектом предусмотрено возведение стен солнечного дома из соломенных блоков по технологии Straw Bale. Это позволит снизить тепловые потери до минимума.
Планировка
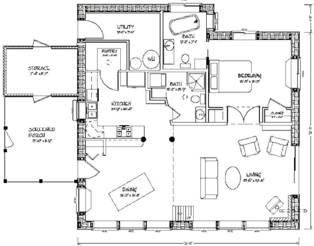
На первом этаже солнечного дома расположены: большая общая комната, разделённая на зоны двухсветной гостиной, столовой, кухни с кладовой; спальня хозяев с отдельной ванной комнатой; общая ванная комната; помещение с инженерным оборудованием.

План первого этажа
На втором этаже дома находятся: гостевая спальня, кладовые. К западному фасаду дома пристроена терраса с кладовой.

План второго этажа
Основной вход в солнечный дом выполнен с террасы.
Отопление
Увеличенная площадь остекления южного фасада позволяет использовать для пассивного отопления солнечное тепло (Direct Gain).
Тепло, поступающее в помещения аккумулируется в бетонной плите пола. В ночное время излучаемое нагретой термической массой тепло распределяется по помещениям естественной конвекцией.
В холодные пасмурные зимние дни дополнительным источником отопления может являться установленная в гостиной дровяная печь.
Комментарии