Солнечный дом для тех, кто строит с перспективой на 25 - 50 лет.. Экодома серии Solar - индивидуальные жилые дома и туристические модули с солнечным отоплением и солнечным охлаждением, спроектированные в 2006-2010 г. во Владивостоке, на базе различных проектных мастерских города.

Оптимальная территория для строительства – полоса не севернее 50 град. с.ш. На территории России это регион с населением почти 20 млн. человек. Автономность домов от внешних источников теплоснабжения от 35 до 81% в зависимости от комплектации. Преимущество проектов в том, что уже на стадии архитектурного решения, без использования активных систем, доля солнечного отопления в теплоснабжении дома составляет от 35 до 57% в морозные погоды с ветром 10-15 м/с и морозом -15С.

В тестовом режиме для Владивостока (43 град. с.ш.) в январе месяце, в шлакоблочном доме были получены следующие результаты по пассивному теплоснабжению: при морозе -15 -18 С за три дня наблюдений температура в помещении в 15 часов составляла +18С, к 7 часам утра +15С. Режим отопления – DIRECT GAIN, термальные массивы отсутствовали, стеклопакет обычный, площадь проема 1/5 от площади помещения, при ориентации 10 град. к ЮЗ.
К настоящему времени разработаны: Экодом SOLAR-5 каркасная версия (три варианта большей и меньшей жилой площади); Экодом SOLAR-5 версия из блоков; Экомодуль SOLAR-5M (два варианта - сезонный и круглогодичный); Экомодуль SOLAR-А (летний, с использованием принципов солнечного охлаждения); Экодом SOLAR-S (социальный тип солнечного дома, минимальной жилой площади 60.0 м2, фактически трех-комнатная квартира для загородного участка); Экодом SOLAR-8 и Экодом SOLAR-3/3М - комфортные коттеджи жилой площадью более 200 м2.
Наиболее известный проект - "Индивидуальный жилой дом с солнечным отоплением "Экодом SOLAR-5" является инициативной запатентованной разработкой его автора. Активную солнечную систему для дома разработал ИПМТ ДВО РАН, Лаборатория нетрадиционной энергетики. Идея 2005 г., первый вариант рабочих чертежей дома разработан в 2006 г., первая презентация проекта на выставке IFAD (2006, Владивосток) совместно с ИПМТ ДВО РАН, первая публикация - журнал .ЭКО, Италия, 2006 г.
Перспективы поточного производства экодомов серии SOLAR в Приморском крае не обсуждались, да и в современных условиях подобное производство скорее всего экономически нецелесообразно – из-за более высокой стоимости домов с солнечным отоплением (примерно на 25% и выше стоимости дома традиционной архитектуры: за счет большей материалоемкости, большой площади энергосберегающих витражей, более сложной технологии сборки...). При сохранении уровня стоимости кв. м. на рынке не более 30 000 руб., как серийный продукт деревообрабатывающего производства (именно «серийный продукт» для массовой социальной застройки) каркасный дом с солнечным отоплением снизит прибыль на те же 25% и более. В странах ЕС для сохранения конкурентоспособности солнечных технологий на строительном рынке действует система стимулирующих мер, которую России еще предстоит разработать и внедрить... К сожалению, массовый энергоэффективный дом в России сегодня - дом шалашиком "под газ" с эффективным утеплителем наружных стен и ставнями на окнах...
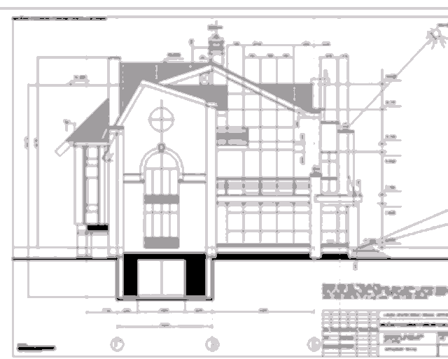
Для всех проектов разработан пакет рабочей документации: архитектурные и конструктивные рабочие чертежи, планы, фасады, разрезы, узлы и детали, спецификации. Проекты SOLAR-5, SOLAR-S, SOLAR-5M разработаны на основе патента на изобретение 2342507. Архитектор Павел Казанцев – автор проектов и патентообладатель. Лицензированная проектная компания М-АРК – рабочая документация на строительство.
В ноябре 2010 г. доработанный вариант "Экодома Solar-5" награжден дипломом 1 ст. Первого Всероссийского конкурса экологической архитектуры "ЗЕЛЕНЫЙ ПРОЕКТ 2010" (Москва, Союз архитекторов России, РИА АРД, при поддержке Минрегионразвития РФ и РОСНАНО)
Индивидуальное строительство нескольких экодомов на различных стадиях в южном Приморье – от нулевого цикла до отделочных работ. Автором также выполнен договор на однократное производство экземпляра Экодома SOLAR-5M для НИОКР и учебных целей НОЦ ДВГТУ «Инновационное домостроение».

ссылки на публикации по теме:
https://disk.yandex.ru/public?hash=8ON2F5XV%2BU%2BHLieh8t3CgRkLVQK2HRVi…
Комментарии4
Новый проект
В поле интересов Solar-5
SOLAR-S "Экодом"
Мифы и реальность солнечного дома
МИФЫ И РЕАЛЬНОСТЬ СОЛНЕЧНОГО ДОМА (региональный взгляд): Полностью автономный солнечный дом в массовом строительстве действительно может остаться «мифом», пока мы рассчитываем на сиюминутную выгоду....