Этот одноэтажный солнечный дом полностью автономен. Он, будучи не подключенным к сети, потребляет энергию, вырабатываемую из возобновляемых источников.

Внешний вид
Дом был спроектирован архитектором Говардом Аланом (Howard Alan) в 2008 г.
Планировка
В плане дом прост и компактен. Большая ось его ориентирована по направлению Запад-Восток. Расположение помещений двухрядное. Вдоль южного фасада солнечного дома расположены помещения дневного пребывания, а вдоль северного — спальни и ванные комнаты.

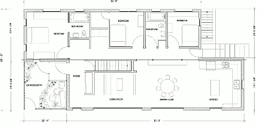
План
В доме расположены: большая общая комната, которая разделена на зоны кухни, столовой и гостиной; прихожая; спальня хозяев с ванной комнатой; 2 спальни; общий санузел. Вход в дом выполнен через озеленённую террасу.
Отопление
Система пассивного отопления — большие окна южного фасада (Direct Gain). Тепло солнца, поступающее через окна аккумулируется бетонной плитой пола.
Дополнительным источником отопления служит система тёплый пол с геотермальным тепловым насосом.
Защита от перегрева
Козырёк–пергола, устроенный над окнами южного фасада, защищает помещения от перегрева в летнее время.
Автономия
Фотоэлектрические батареи мощностью 4,5 кВт, смонтированные на крыше, обеспечивают электроснабжение дома.
Солнечный дом оборудован системой сбора дождевой воды, для чего крыша его выполнена V-образной.
Комментарии