Проект этого небольшого каркасного пассивного солнечного дома, имеющего площадь 55.7 м², выполнил архитектор Томас Фокс (Thomas Fox).

Южный фасад
Конструкция
По проекту стены дома монтируются из готовых панелей, изготовленных индустриально.

Восточный фасад
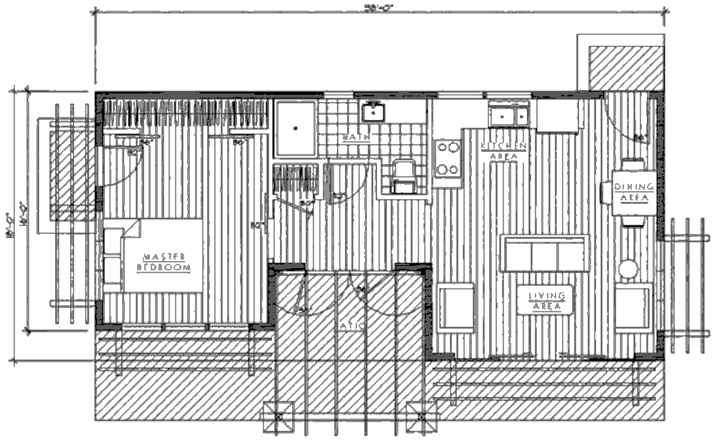
Планировка
В этом уютном солнечном доме расположены: общая комната, включающая в себя гостиную, столовую, кухню; спальня; ванная комната.

План
Отопление
Обильное остекление южного фасада дома является системой пассивного солнечного отопления с прямым доступом (Direct Gain).
Поступающее в дом тепло аккумулируется массивной бетонной плитой пола, покрытой тёмной керамической плиткой. В ночное время это излучаемое термической массой тепло распространяется естественной конвекцией.
Защита от перегрева
Для защиты помещений солнечного дома от перегрева жарким полуденным солнцем односкатная крыша дома имеет большие свесы, затеняющие верхнюю часть остекления.
Нижняя часть остекления южного, восточного и западного фасадов дома затеняется перголами.
Комментарии