Автономный пассивный солнечный дом построен в Невада-Сити (Калифорния, США) по проекту архитектора Дэвида Райта (David Wright). Дом имеет площадь 331 м².

Внешний вид
Стены дома — конструкционные теплоизоляционные панели (SIP).
Планировка
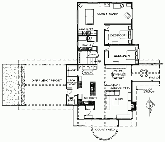
На нижнем уровне дома расположены: большая общая комната, разделенная на зоны гостиной, столовой, кухни; кладовая; прихожая; семейная комната; 2 спальни; санузел; прачечная.

План главного уровня
На втором уровне дома находятся: спальня хозяев с ванной и гардеробной комнатами; студия; небольшой видеозал.

План второго уровня
К восточному фасаду солнечного дома примыкает патио, а к западному — стоянка на 2 автомобиля.

Фрагмент интерьера
Система отопления
Дом отапливается теплом солнца, поступающим через большие окна южного фасада (Direct Gain). Тепло аккумулируется бетонными полами, а также массивным камином, расположенным в гостиной и являющимся дополнительным источником отопления.
Системы автономии дома
Систему горячего водоснабжения обеспечивают гелиоколлекторы водонагревателя, смонтированные на крыше. Там же смонтированы фотоэлектрические панели обеспечивающие электроснабжение дома.
Комментарии