Проект этого солнечного дома выполнен архитектором Чарльзом Вудсом (Charles G. Woods) в стиле заглублённых домов Фрэнка Ллойда Райта. Площадь дома составляет 241, 5 м².

Вид с юго-востока
Дом оборудован воздушной системой пассивного гелиоотопления с аккумулированием тепла в подполье (Plen-Wood).
Конструкция
Наружные стены солнечного дома выполнены из прессованной древесины и фанеры. Стены и крыша суперизолированы. Теплоизоляция крыши толщиной 450 мм уложена между стропильными балками, установленными с шагом 1,2 м.
Сам дом заглублён в пологий склон южной экспозиции. Западная, северная и восточная стены обвалованы и не имеют окон. Полы всех помещений деревянные, пол гелиотеплицы — сланец.
Южный фасад дома представляет собой ряд витражей с остеклением двухслойными стеклопакетами. Вход в дом выполнен через теплицу. Вдоль северной бермы устроены зенитные фонари, позволяющие обеспечить естественным светом служебные помещения.
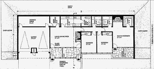
Планировка
В солнечном доме расположены: общая комната, зонированная на гостиную и столовую; кухня; спальня хозяев с гардеробной и ванной комнатами; 2 спальни; общая ванная комната; постирочная/техническое помещение; гелиотеплица; дровяной склад; гараж на 2 автомобиля с кладовой.

План
Система отопления
Система отопления работает следующим образом. Тепло солнца, поступающее через окна южного фасада спален, обогревает их непосредственно (Direct Gain). Тепло, поступающее через витраж встроенной гелиотеплицы (Isolated Gain), позволяет отапливать смежные помещения через сдвижные остеклённые двери.

Разрез
Излишки тепла по опускному воздуховоду отводятся в подполье, которое выполняет функцию теплонакопителя и теплораспределителя. В подполье тепло аккумулируется гравийной засыпкой и при необходимости подаётся в помещения через вентиляционные решётки, устроенные в полу.
В качестве резервного источника отопления использованы дровяные камины, установленные в общей комнате и спальне хозяев.
Пергола, установленная над окнами южного фасада солнечного дома, позволяет защитить помещения от прямого света солнца в жаркие полуденные часы.
Комментарии