Заглублённый солнечный дом в трёх уровнях, спроектированный архитектором Кеном Гефартом (Ken Gephart), интересен тем, что с улицы видны лишь гараж и ограда двора.

Внешний вид
Основные помещения находится ниже уровня земли, освещены из внутреннего двора и полностью обвалованы.

Интерьер гостиной

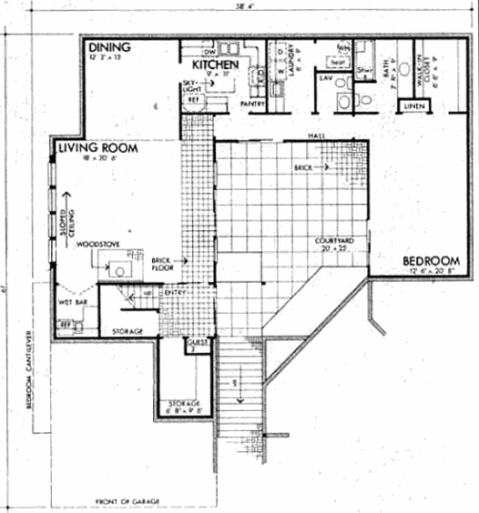
Нижний уровень, план
На среднем уровне дома находятся: гараж на 2 автомобиля, кладовая.

Средний уровень, план
На верхнем уровне расположены: студия/спальня, гардеробная, ванная комната.

Верхний уровень, план
Солнечный дом оборудован системой пассивного отопления (Direct Gain). Тепло солнца, поступающее через витраж гостиной и зенитные фонари аккумулируется кирпичной стеной с прилегающей к ней массивной дровяной печью, а также кирпичным полом. В ночное время это тепло излучается в окружающую среду и поступает естественной конвекцией в гостиную, столовую, кухню и спальню верхнего уровня. В остальные помещения нижнего уровня тепло подаётся по воздуховоду небольшим вентилятором.

Разрез
В холодные ненастные дни недостаток тепла восполняется поступлением его от дровяной печи.
Комментарии