Одноэтажный пассивный солнечный дом в стиле ранчо построен) по проекту архитектора Дэвида Райта (David Wright). Он полностью автономен.

Северный фасад
Дом площадью 162,6 м² находится в Гридли (Калифорния, США).
Планировка
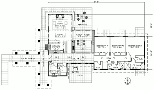
Основной вход в дом устроен с восточной стороны. С северной стороны дома находится патио, а с южной — терраса. Стоянка для машин расположена с восточной стороны.

План
В основном объёме дома расположены: большая общая комната, разделённая на зоны гостиной, столовой и кухни; семейная комната; санузел; постирочная.
В западном крыле дома находятся: спальня хозяев с гардеробной и ванной комнатами; 2 спальни с общей ванной комнатой.
Отопление
Увеличенные окна южного фасада солнечного дома выполняют функцию системы пассивного отопления (Direct Gain). Аккумуляторами тепла служат массивные бетонные полы, покрытые плиткой.
Дополнительный источник отопления — огромный камин, пристроенный к южному фасаду гостиной.
Автономия
На крыше смонтированы гелиоколлекторы водонагревателя и панели фотоэлектрических батарей, обеспечивающие его горячей водой и электроэнергией.
Комментарии