Перейти к основному содержанию
Mensh.ru

Main navigation

  • Конструкции
  • Системы
  • Энерго
  • Стили
  • Проекты
  • Участок
  • Разное
  • Доки
User account menu
  • Войти

Строка навигации

  1. Главная

Солнечный дом в Уайтевилле

Автор: mensh, 3 января, 2013
Проекты домов
  • Солнечный дом

Современный одноэтажный пассивный солнечный дом площадью 157,4 м², построенный в Уайтевилле (Виргиния, США), расположен на южном пологом склоне.

Пассивный солнечный дом в Уайтевилле, внешний вид

Внешний вид

Содержание

  • Энергосбережение
  • Планировка
  • Система отопления
  • Защита от перегрева
  • Горячее водоснабжение
  • Проектирование и строительство

Энергосбережение

Были выполнены следующие энергосберегающие мероприятия:

  • дом врезан в склон таким образом, что уровень пола находится на 1,2 м ниже уровня земли;
  • с западной стороны устроены кладовая и входной тамбур, выполняющие функцию буфера;
  • теплоизоляция крыши и наружных стен увеличена (термическое сопротивление крыши R=5,8 и стен — R=4,2).

Планировка

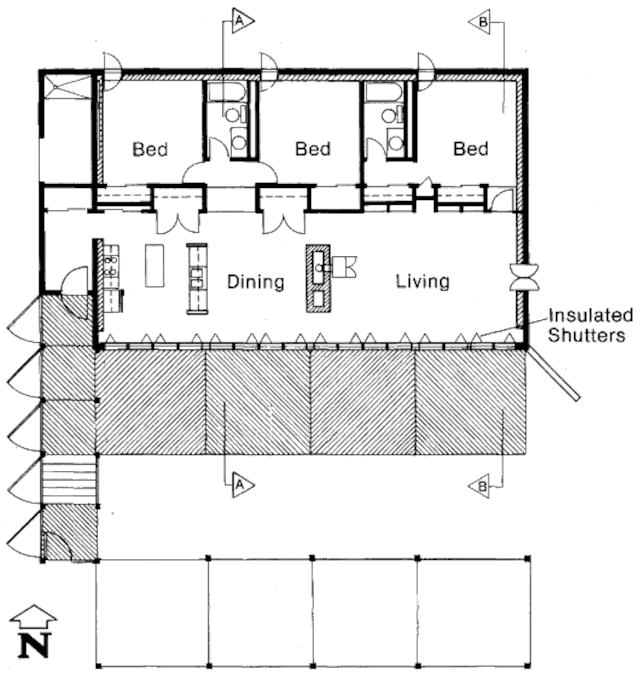
Дом разделён на 2 части по оси запад-восток. Южная половина содержит гостиную, столовую и кухню, получающих обильный солнечный свет через витраж южного фасада. В 3 спальни и 2 ванных комнаты, находящиеся в северной части дома, приподнятой по отношению к южной на 0,4 м, дневной свет поступает через верхнебоковые окна (клерестории), также имеющие южную ориентацию.

Пассивный солнечный дом в Уайтевилле, план

План

Каждая из спален имеет одно маленькое окно с северной стороны, гостиная — с восточной, с западной стороны остекление отсутствует во избежание перегрева помещений в летнее послеполуденное время.

Всё остекление дома двухслойное.

Система отопления

Витраж южного фасада дома и клерестории являются системой солнечного отопления с непосредственным обогревом помещений (Direct Gain). Общая площадь остекления южной ориентации составляет 33 м².

Пассивный солнечный дом в Уайтевилле, разрез по A-A

Разрез по A-A

Солнечное тепло, поступившее в помещения через витраж южного фасада, аккумулируется в покрытой керамической плиткой бетонной плите пола и кирпичных стенах гостиной и столовой. Тепло, поступившее в спальни через клерестории, аккумулируется в кирпичной северной стене дома.

Пассивный солнечный дом в Уайтевилле, разрез по B-B

Разрез по B-B

В ночное время обогрев помещений происходит излучением от нагретых термических масс, а распространение естественной конвекцией. Для снижения тепловых потерь витраж южного фасада и клерестории ночью изолируются складными ставнями, которые значительно увеличивают термическое сопротивление (R=1,2).

Доля солнечной энергии в отоплении дома 60%.

Резервными источниками тепла служат дровяная печь и тепловой насос.

Защита от перегрева

В летнее время открытые клерестории позволяют добиться усиленной вентиляции помещений.

Горячее водоснабжение

Систему горячего водоснабжения обеспечивают 2 плоских солнечных коллектора общей площадью 4,6 м² и бак-аккумулятор ёмкостью 300 л.

Проектирование и строительство

Проектирование дома
Chris Umberger, Architect Inc.
Проектирование СЭУ
Bob Livingstone and Chris Umberger
Строительство
Bradco Construction Company, Inc.
Стоимость строительства
$75,000

Комментарии

Последние материалы

  • Землебитный дачный дом
    3 days ago
  • Компактный загородный дом
    4 days 4 hours ago
  • Землебитный солнечный дом Earthbag Arc House
    4 days 7 hours ago
  • Землебитный дом 2-Story Earthbag Roundhouse
    4 days 7 hours ago
  • Землебитный дом Solar Santa Fe
    5 days 7 hours ago

Последние комментарии

  • (Тема не указана)
    4 months ago
  • Строительство на лугу вижу и…
    1 year 9 months ago
  • На фото показано возведение…
    1 year 9 months ago
  • Мне он тоже нравится…
    2 years 11 months ago
  • От этого дома буквально…
    2 years 11 months ago
RSS feed

Secondary menu

  • ЧаВо

© 2003–2025 Олег Меньшенин mensh@yandex.ru