Двухэтажный пассивный солнечный дом Sunstar House, имеющий жилую площадь 260 м², был спроектирован и построен фирмой Colorado Sunworks.

Внешний вид
Планировка
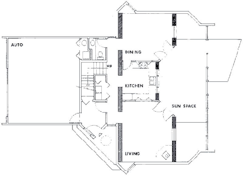
На первом этаже этого комфортабельного дома расположены: двухсветная солнечная теплица с площадью остекления 56,7 м², гостиная с камином, кухня, столовая, постирочная, санузел, помещение с инженерным оборудованием.

План первого этажа
К северному фасаду дома пристроен гараж на 2 автомобиля.

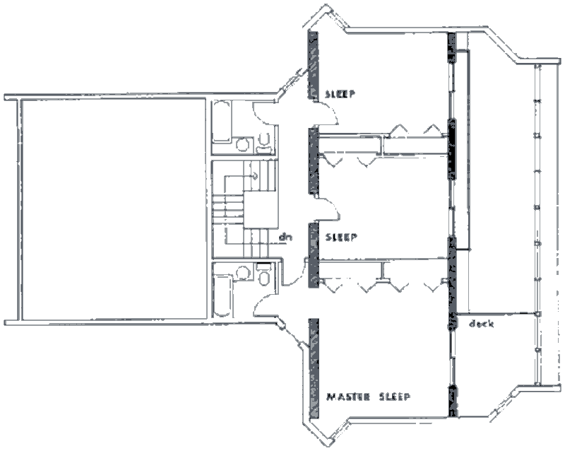
План второго этажа
На втором этаже дома находятся: 3 спальни со сводчатыми потолками и балконами, выходящими в гелиотеплицу; 2 санузла.
Отопление
Система пассивного солнечного отопления дома включает в себя двухсветную теплицу (Isolated Gain), стены Тромба (Indirect Gain) между жилыми помещениями и теплицей, воздушные галечные теплоаккумуляторы.
Итоги
Система пассивного отопления, обеспечивает 80% отопительной нагрузки дома.
Комментарии