Этот компактный одноэтажный солнечный дом оборудован системой пассивного гелиоотопления. Для снижения отопительной нагрузки он суперизолирован и обвалован.

Внешний вид
Конструкция
Стены солнечного дома каменные с наружной стекловолоконной теплоизоляцией толщиной 150 мм. Наружная обшивка стен — кедровый сайдинг. Толщина стекловолоконной теплоизоляции крыши 225 мм. Обваловка (берма) западного, северного и восточного фасадов имеет высоту 1,1 м.
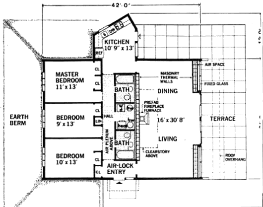
Планировка
Дом включает в себя следующие помещения: общая комната, разделённая на зоны гостиной, столовой, кухни (альков); 3 спальни; 2 ванных комнаты; техническое помещение.

План
Система отопления
Отопление солнечного дома представляет собой комбинацию систем пассивного гелиоотопления:
- прямое отопление через витраж южного фасада (Direct Gain);
- стены Тромба (Indirect Gain), устроенные на расстоянии 150 мм от витража и занимающие 50% площади южного фасада.

Разрез
Поступившее в дом тепло солнца аккумулируется массивными каменными стенами и бетонной плитой пола, покрытой керамической плиткой. В ночное время это тепло свободно излучается в помещения. В спальни, расположенные вдоль северного фасада, тёплый воздух подаётся небольшим вентилятором по воздуховоду.
В ненастные холодные дни дополнительным источником отопления солнечного дома служит установленная у северной стены общей комнаты дровяная каминопечь-калорифер. Тёплый воздух поступает от неё в общую комнату непосредственно, а в спальни — подаётся вентилятором по воздуховоду.
Горячее водоснабжение
На крыше солнечного дома, имеющей форму бабочки, смонтированы жидкостные коллекторы системы солнечного горячего водоснабжения.
Вентиляция
Верхнебоковые окна являются источником дополнительного притока дневного света в общую комнату. Эти же окна обеспечивают качественную естественную вентиляцию в летнее время.
Комментарии