Солнечный дом в двух уровнях, оборудованный системой пассивного отопления, явно создавался под впечатлением знаменитых домов прерий Фрэнка Ллойда Райта.

Вид с юго-запада
Дом частично заглублён в пологий склон южной экспозиции и обвалован, что позволило заметно снизить отопительную нагрузку и стабилизировать температуру в помещениях за счёт огромной термической массы земли.
Планировка
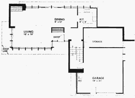
На нижнем уровне солнечного дома располагаются: большая общая комната, зонированная на гостиную и столовую; кухня; гараж; кладовая.

Первый уровень, план
На верхнем уровне находятся: спальня хозяев с ванной комнатой, 2 спальни, общая ванная комната.

Второй уровень, план
Система отопления
Системой пассивного отопления служат большие остеклённые окна общей комнаты и спален (Direct Gain), через которые тепло солнца, проникающее в дом, аккумулируется бетонной плитой пола. Это тепло в ночное время свободно поступает в помещения для поддержания в них комфортной температуры. С целью снижения теплопотерь остекление северного фасада имеет минимальную площадь и представляет собой узкую полосу вехнебоковых окон (клерестории).
Дополнительными источниками отопления, необходимыми в холодные пасмурные дни, служат: печь, установленная в гараже; камин, располагающийся в углу гостиной.
Большие карнизные свесы, устроенные над остеклением южного фасада солнечного дома, защищают помещения от перегрева в летний полуденный зной.
Комментарии