Проект одноэтажного пассивного солнечного дома площадью 125,2 м², разработанный Крисом Ри (Chris Rea) и Робертом Вагнером (Robert Wagner), имеет ряд интересных особенностей.

Вид с северо-востока
Конструкция
Дом имеет следующие конструктивные особенности:
- зимой в большой столовой тепло и светло благодаря обильному остеклению южного фасада, а летом прохладе в помещении способствуют большие свесы, защищающие от прямого солнечного света и бетонные полы, стабилизирующие колебания температуры;
- незначительная площадь остекления западного и восточного фасада защищает помещения от переохлаждения зимой и перегрева летом;
- отсутствие каких-либо перегородок между общей комнатой, столовой и кухней способствует распределению солнечного тепла и хорошей вентиляции.
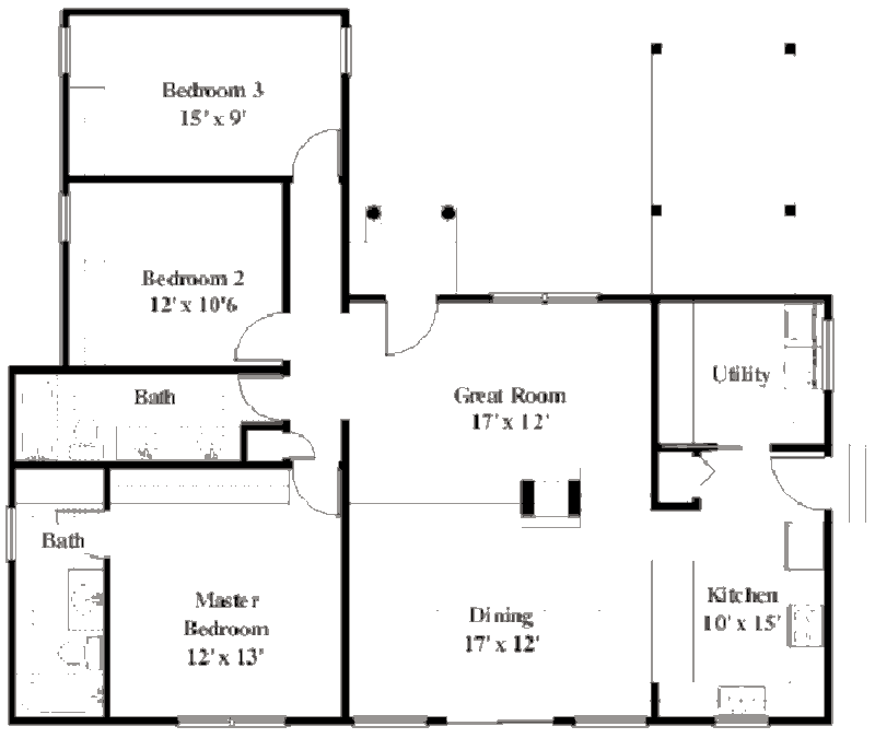
Планировка
В доме расположены: большая общая комната и столовая с камином, кухня, хозяйственное помещение, 3 спальни, 2 санузла.

План
Отопление
Системой пассивного солнечного отопления с прямым обогревом являются большие окна южного фасада (Direct Gain). Тепло солнца, поступающее через остекление, аккумулируется массивной бетонной плитой пола. В ночное время это тепло распределяется по помещениям естественной конвекцией.
Дополнительным источником тепла в пасмурные зимние дни служит большой двухсторонний камин, установленный между общей комнатой и столовой.
Комментарии