Для дизайна в традиционном стиле проект пассивного солнечного дома американского архитектора Алисии Раветто (Alicia Ravetto) трудно превзойти.

Вид с северо-северо-запада
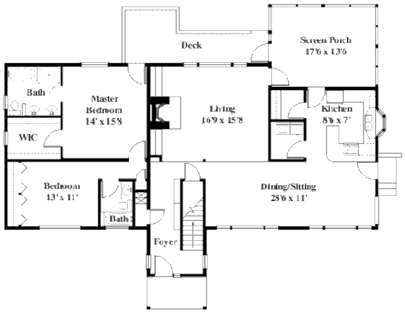
Планировка
На первом этаже площадью 107,8 м² находятся: большая гостиная с камином, столовая, кухня, кладовая, постирочная, веранда, спальня хозяев с гардеробной комнатой и ванной, вторая спальня, санузел.

План главного уровня
Гостиная со сводчатым потолком и большим камином имеет обильное остекление не только южного, но и северного фасада. Над кухонной раковиной устроен эффектный эркер. Веранду, расположенную рядом с кухней, можно использовать в качестве второй столовой.

План мансарды
В мансарде площадью 49,2 м² расположен кабинет.
Отопление
Солнечное тепло, полученное через большие окна южного фасада (Direct Gain), аккумулируется в цветных бетонных полах, огромная теплоёмкость которых позволяет сохранять тепловой комфорт в течение нескольких пасмурных дней.
В качестве резервного источника отопления в холодные облачные дни может использоваться большой камин, установленный в гостиной.
Комментарии