Этот пассивный солнечный дом построен в 1979 г. в Лайонс (Колорадо, США) по проекту архитектора Денниса Холлоуэя (Dennis Holloway). Дом каркасный, в трёх уровнях.

Внешний вид
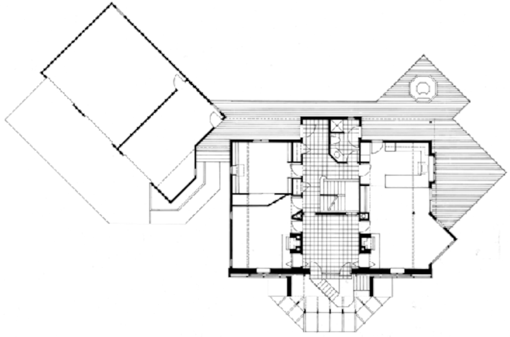
Планировка
На главном уровне дома расположены: большая общая комната, зонированная на кухню и столовую; гостиная; спальня; санузел. С северо-западной стороны расположен большой гараж на 2 автомобиля.

Главный уровень, план
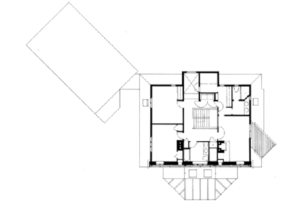
На верхнем уровне дома находятся: 3 спальни, 2 санузла; постирочная.

Верхний уровень, план

Разрез
Отопление
Система гелиоотопления дома комбинированная и состоит из:
- стен Тромба (Indirect Gain), занимающих весь южный фасад;
- пристроенной к южному фасаду солнечной теплицы (Isolated Gain).
Резервными источниками отопления служат камины.
Комментарии