Автор проекта этого солнечного дома архитектор Альфредо Де Видо (Alfredo De Vido). Он использовал термин «биосфера» в расширенном смысле самоподдерживающейся экосистемы.

Вид дома с юго-запада
В таком доме семья может жить независимо.

Фрагмент интерьера
Планировка
На нижнем уровне солнечного дома расположены: бункеры-теплоаккумуляторы с гравийной засыпкой, пруд.

Нижний уровень,план
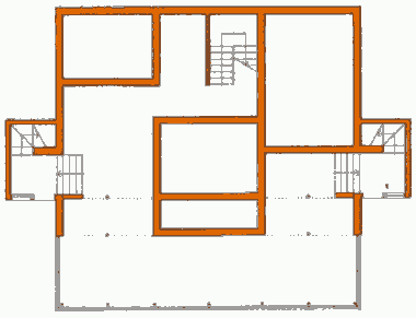
На среднем уровне находятся: гелиотеплица с прудом и водопадом, гостиная, кухня-столовая, санузел.

Главный уровень, план
На верхнем уровне расположены: 3 спальни, ванная комната.

Верхний уровень, план
Система отопления
Вся площадь южного фасада солнечного дома представляет собой гелиомембрану. Эта часть дома может быть изолирована от остальных помещений во избежание заметных колебаний температуры воздуха в помещениях.
В замкнутом пространстве теплицы тепло солнца поглощается кирпичными полами террас и каменными подпорными стенками, имеющими значительную площадь.

Нагретый воздух из гелиотеплицы поступает по системе воздуховодов либо в помещения, либо в бункер-теплоаккумулятор с засыпкой из гравия.
Та же система воздуховодов обеспечивает охлаждение помещений в летнее время. Для этого в ночное время теплоаккумулятор охлаждается прохладным ночным воздухом, который в дневное время подается в помещения.
Для отопления помещений в холодные пасмурные дни в доме установлены 4 дровяных печи резервного отопления, позволяющие при необходимости нагревать любое помещение индивидуально.
Горячее водоснабжение
У самого конька южного ската крыши солнечного дома смонтированы коллекторы системы горячего водоснабжения.
Тепличное хозяйство
Гелиотеплица используется также и для хозяйственных целей. Участки для посадки овощей расположены в 3-х уровнях, а вдоль северной стены теплицы посажены вьющиеся растения. Кроме вышеописанного в гелиотеплице расположены пруд и водопад
Комментарии