Перейти к основному содержанию
Mensh.ru

Main navigation

  • Конструкции
  • Системы
  • Энерго
  • Стили
  • Проекты
  • Участок
  • Разное
  • Доки
User account menu
  • Войти

Строка навигации

  1. Главная

Солнечное ранчо

Автор: mensh, 30 января, 2026
Проекты домов
  • Землебитные дома
  • Солнечный дом

Проект этого солнечного дома в стиле американского ранчо был выполнен американским архитектором д-ром Оуэном Гейгером (Owen Geiger).

Проект ранчо с пассивным солнечным отоплением, южный фасад

Содержание

  • Конструкция
  • Планировка
  • Отопление

Конструкция

В зависимости от региона строительства стены дома могут возводиться:

  • из мешков с землёй — землебитная строительсная технология Еarthbags;
  • из соломенных блоков (Straw bale).

Планировка

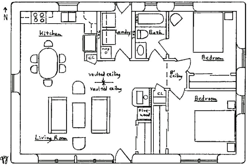
Площадь ранчо составляет 74,8 м².

В доме располагаются: огромная общая комната со сводчатым потолком, которая поделена на зоны гостиной и кухни-столовой; 2 спальни; санузел; прачечная.

Проект ранчо с пассивным солнечным отоплением, план

План

Отопление

Увеличенная площадь остекления южного фасада — система пассивного солнечного отопления с прямым обогревом (Direct Gain).

Дополнительным источником отопления дома является установленная в гостиной дровяная каминопечь.

Комментарии

Последние материалы

  • Ошибки при кладке фундаментных стен
    2 hours ago
  • Ошибки при бетонировании
    3 days 20 hours ago
  • Характеристики солнечного коллектора
    1 week ago
  • Растущий дом Double Wide Farmhouse
    1 week 1 day ago
  • Землебитный дом Roundhouse Studio
    1 week 1 day ago

Последние комментарии

  • (Тема не указана)
    6 months ago
  • Строительство на лугу вижу и…
    1 year 11 months ago
  • На фото показано возведение…
    1 year 11 months ago
  • Мне он тоже нравится…
    3 years 1 month ago
  • От этого дома буквально…
    3 years 1 month ago
RSS feed

Secondary menu

  • ЧаВо

© 2003–2025 Олег Меньшенин mensh@yandex.ru