Этот солнечный дом по форме напоминает традиционный голландский сарай с достаточно крутой двускатной крышей. Большие свесы защищают помещения от перегрева в летнюю жару.

Вид с юго-запада
Дом построен в Клаверек (Нью-Йорк, США) по проекту американского архитектора Дениса Ведлика (Dennis Wedlick). Строительство было завершено в сентябре 2010 г.

Южный фасад
Архитектор применил принципы пассивного дизайна, что позволило значительно снизить расходы на отопление и охлаждение помещений.
Конструкция
Стены выполнены из структурных теплоизолирующих панелей (SIP). Балки деревянные клеёные. Пол бетонный покрытый керамической плиткой.
Простая форма солнечного дома, применение крупноразмерных панелей SIP, устройство под плитой пола суперизоляции (300 мм конструкционного полистирола) позволило до минимума снизить вероятность утечек тепла.
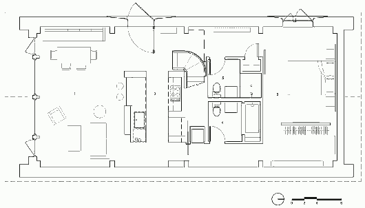
Планировка
Площадь дома составляет 153,3 м². Планировка помещений такова, что для воздухообмена в них достаточно естественной конвекции воздуха.

Нижний уровень, план
На нижнем солнечного дома уровне располагаются: большая двухсветная общая комната, зонированная на гостиную, столовую, кухню; спальня хозяев с гардеробной и ванной комнатами; общая ванная комната.

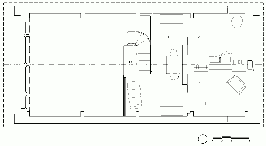
Верхний уровень
На верхнем (чердачном) уровне находятся: студия; 2 спальни. Чердачные помещения освещаются через мансардные окна.

Фрагмент интерьера
Система отопления
Весь южный фасад солнечного дома занимает витраж из стеклопакетов с низкоэмиссионными стёклами. Поступающее через него тепло солнца (Direct Gain) аккумулируется бетонной плитой пола. Большая термическая масса пола прекрасно стабилизирует температуру.
Эффективность системы позволяет отказаться от традиционного отопления. Тем не менее, на случай экстремально низких температур дом оборудован тепловым насосом, который может служить резервным источником отопления.
Итоги
Дом стал первым пассивным домом, сертифицированным в шт. Нью-Йорк.
На сегодняшний день этот гелиодом является одним из самых энергоэффективных домов в США.
Комментарии