Солнечный дом, спроектированный архитектором Чарльзом Вудсом (Charles Woods) представляет собой компактный мансардный дом площадью 232,3 м², оборудованный пассивной системой отопления.

Внешний вид
Все фасады дома за исключением южного обвалованы для снижения отопительной нагрузки.
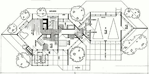
На главном уровне дома расположены: большая общая комната, зонированная на двухсветную гостиную с угловым камином, столовую, кухню; спальня; ванная комната; солнечная теплица. К восточному фасаду пристроен гараж на 2 автомобиля. Вход устроен через гелиотеплицу, выполняющую роль шлюза.

Нижний уровень, план
На верхнем (мансардном) уровне находятся: семейная комната с большим камином, студия/гостевая спальня, спальня хозяев с ванной комнатой и большой лоджией.

Верхний уровень, план
Система отопления дома устроена следующим образом. Тепло солнца, поступающее через остекление гелиотеплицы (Isolated Gain), витражи южного фасада, мансардные и верхнебоковые окна (Direct Gain), аккумулируется массивными бетонными полами нижнего и верхнего уровня. В ночное время тепло, аккумулированное термической массой, свободно излучается в помещения, распределяясь по ним естественной конвекцией.
В холодные пасмурные дни резервным источником отопления служат 2 дровяных камина.
Большие свесы крыши, устроенные над остеклением южного фасада, защищают помещения от прямых солнечных лучей в жаркие летние дни.
Комментарии