Проект небольшого одноэтажного каркасного пассивного солнечного дома площадью 75,8 м² выполнен Томасом Фоксом (Thomas Fox).

Южный фасад

Северный фасад
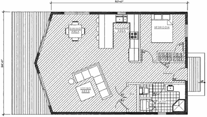
Планировка
В солнечном доме размещены: общая комната, зонированная на гостиную, столовую, кухню; спальня; ванная комната; постирочная.

План
Основной вход в дом выполнен со стороны северного фасада.
Со стороны южного фасада дома расположена терраса, выход на которую устроен из общей комнаты через остекленные двери.
Благодаря использованию свободного плана в солнечом доме очень просторно и уютно.
Отопление
Система отопления дома пассивная. Солнечное тепло поступает через остекление южного фасада увеличенной площади (Direct Gain).
Комментарии