Проект комфортабельного одноэтажного каркасного солнечного дома площадью 257,3 м² выполнен с учётом использования пассивной солнечной энергии для отопления.

Внешний вид
Планировка
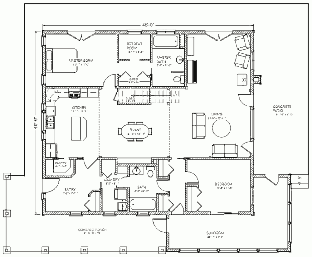
На основном уровне солнечного дома площадью 197,4 м² расположены: огромная общая комната с зонами кухни, столовой и гостиной; спальня хозяев с гардеробной и ванной комнатой; 2 спальни с общей ванной комнатой; прачечная; прихожая.

План основного уровня дома
Основной вход в дом выполнен с западной стороны, а со стороны восточного фасада к дому пристроена терраса, на которую устроен выход из гостиной.

Восточный фасад
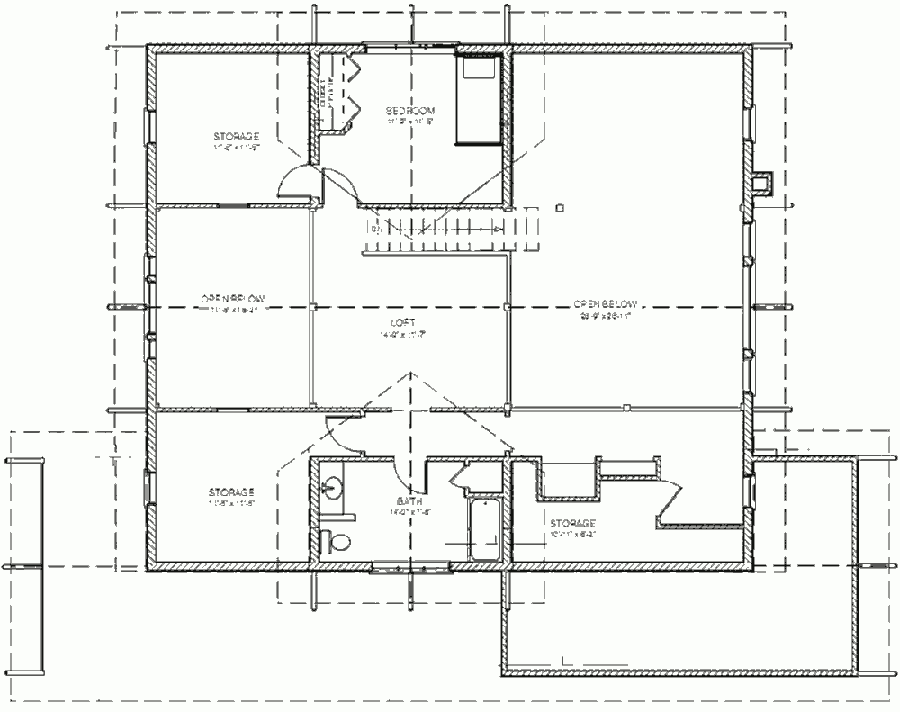
На чердаке дома площадью 59,9 м² размещены: спальня, ванная комната, 3 кладовых.

План чердака
Естественное освещение
Обильное остекление солнечного дома позволяет эффективно пользоваться естественным освещением,
Отопление
К южному фасаду дома пристроена солнечная теплица (Isolated Gain), позволяющая значительно снизить отопительную нагрузку.
Дополнительным источником отопления служит установленная в гостиной дровяная каминопечь.
Защита от перегрева
Большие свесы крыши защищают помещения солнечного дома от палящих солнечных лучей в жаркий полдень.
Комментарии