Этот небольшой солнечный дом является модернизированным традиционным американским фермерским домом, оборудованным системой пассивного отопления.

Внешний вид
Проект был выполнен архитектором Дэвидом Райтом (David Wright). Площадь дома составляет 178,4 м².
Планировка
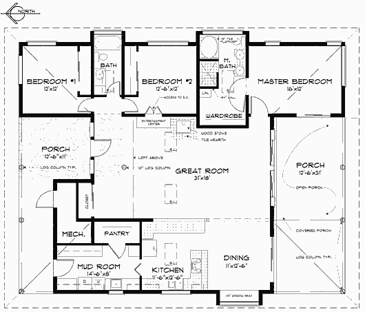
В доме расположены: огромная общая комната, зонированная на гостиную, столовую и кухню; спальня хозяев с гардеробной комнатой и большой ванной комнатой; 2 спальни с общей ванной комнатой; кладовая; прачечная; техническое помещение; 2 больших террасы.

План
Отопление
Системой пассивного отопления являются большие окна южного фасада дома (Direct Gain).
Резервным источником отопления служит установленная в общей комнате дровяная печь.
Комментарии3
Solar Farmhouse
Solar Farmhouse
Теплоаккумулирующим элементом является бетонный пол. В журнале Mother Earth News была опубликована статья Д. Райта. Если представляет интерес, то я разместил её здесь: https://mensh.ru/sites/default/files/uploads/PassiveSolarDesignBasics.p…
Спасибо за ссылку.