Этот энергосберегающий дом частично заглубён, обвалован и имеет свободную планировку. Он сливается с ландшафтом и не виден с большого расстояния, видна лишь крыша гаража.

Внешний вид
Дом площадью 167,2 м² (плюс гараж площадью 43,7 м²) был построен в 2005 г. в Портленде (Орегон, США) в качестве личной резиденции дизайнера Уолта Куэйда (Walt Quade) и прошёл длительные испытания для оценки правильности выбранной концепции.
Планировка
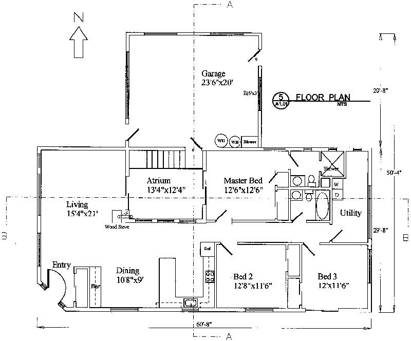
В доме расположены: большая общая комната с дровяной печью, зонированная на гостиную, кухню и столовую; спальня хозяев с гардеробной и ванной; 2 спальни; общая ванная комната; атриум; помещение с инженерным оборудованием.

План
К северному фасаду дома пристроен большой гараж.
Система отопления
Куэйд утверждает, что отопление энергосберегающему дому требуется крайне редко, температура внутри никогда не изменяется более чем на 3–4°C независимо от наружной температуры. Если же температура падает ниже комфортной, то можно включить систему подпольного отопления.

Фрагмент интерьера
Систему отопления дополняют дровяная печь, установленная недалеко от центра жилой площади, и потолочный вентилятор.
Естественное освещение
Через атриум, расположенный в центре дома, солнечный свет поступает в общую комнату и хозяйскую спальню, снабжая их дополнительным естественным светом и солнечным теплом. Это обеспечивают 4 зенитных фонаря атриума, каждый из которых имеет размеры 3x0,6 м.
Итоги
За годы эксплуатации энергосберегающий дом своей высокой экономичностью и комфортностью полностью оправдал ожидания владельца.
Комментарии