Проект комфортабельного дома из соломенных блоков площадью 131,2 м² выполнен архитектурной фирмой Integral Design Studio. Благодаря открытым стойкам и балкам он выглядит типичным сельским домом.

Южный фасад

Западный фасад
Планировка
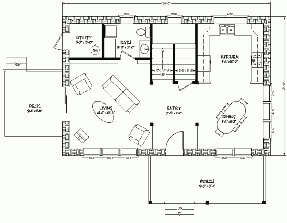
На основном уровне дома размещены: огромное помещение, разделённое на зоны гостиной, прихожей, столовой, кухни; ванная комната; помещение с инженерным оборудованием.

План основного уровня дома
Основной вход в дом выполнен с террасы, пристроенной к южному фасаду. Из гостиной через раздвижные остеклённые двери устроен выход на открытую террасу, расположенную со стороны западного фасада.

План чердака
На чердаке оборудованы 2 уютные спальни, ванная комната и 4 кладовых.
Отопление
В гостиной установлена дровяная каминопечь.
Комментарии