Проект одноэтажного компактного активного солнечного дома Northern Lights 2200 был разработан фирмой Integral Design Studio для северо-западных районов США.

Южный фасад
Конструктивные особенности
Площадь солнечного дома составляет 208,1 м². К нему пристроен большой гараж площадью 66,3 м². Со стороны северного и южного фасадов устроены террасы, прикрытые огромными свесами крыши.

Северный фасад
Энергосбережение
Для снижения отопительной нагрузки в качестве утеплителя стен применены соломенные блоки Straw Bale, благодаря чему удалось значительно снизить тепловые потери через стены.
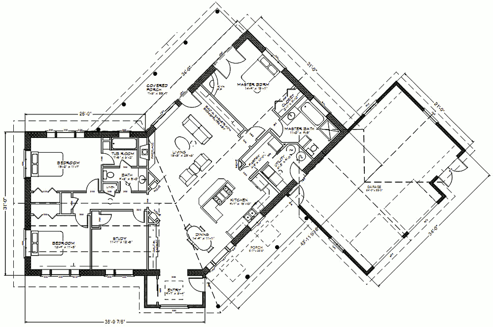
Планировка
В солнечном доме расположены: большая общая комната, разделенная на зоны кухни-столовой и гостиной; спальня хозяев с гардеробной и большой ванной комнатой; 3 спальни; ванная комната, туалет; помещение, где размещено инженерное оборудование и прачечная; прихожая.

План
Основной вход в дом выполнен с южной стороны, но предусмотрен выход на северную террасу из гостиной и спальни хозяев.
Отопление
Отапливается солнечный дом водяной лучистой системой отопления — Тёплый пол, для чего на крыше установлены 6 жидкостных гелиоколлекторов.
В качестве дополнительного источника отопления может быть использован установленный в гостиной камин.
Комментарии