Проект пассивного солнечного дома площадью 244,1 м² разрабатывался архитектурной фирмой Integral Design Studio для земельного участка, не имеющего инженерных коммуникаций.

Южный фасад
Особенности проекта
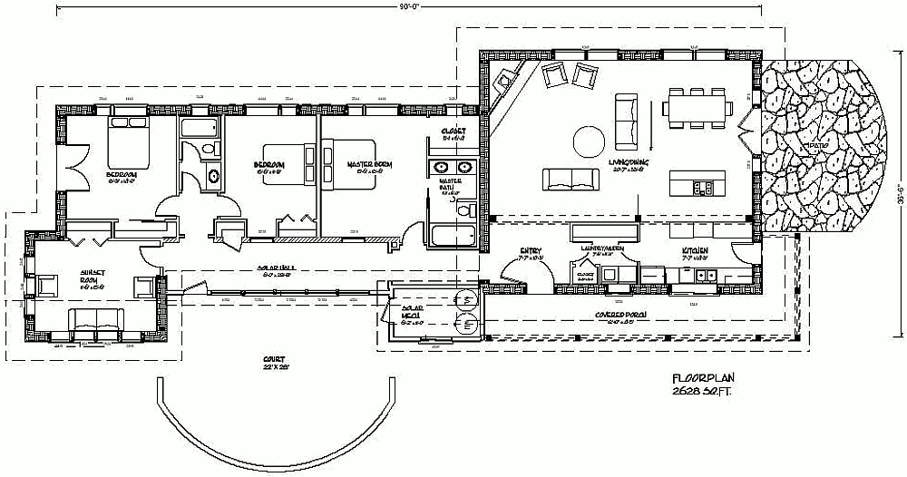
Задача проектировщиков осложнялась тем, что заказчик хотел получить проект солнечного дома, из окон любого помещения которого открывались бы прекрасные виды. В результате был создан проект одноэтажного дома, сильно вытянутого по оси запад-восток, с большой общей комнатой и пристроенным с западной стороны крылом с 3 большими спальнями и семейной комнатой.
Энергосбережение
Для снижения теплопотерь в качестве утеплителя саманных стен солнечного дома использованы соломенные блоки (Straw bale).
Планировка
В основном объёме этого комфортабельного солнечного дома расположены: большая общая комната с угловым камином, разделённая на зоны гостиной и столовой; кухня; прачечная.

План
В западном крыле дома находятся: спальня хозяев с гардеробной и ванной комнатами; 2 спальни с общей ванной комнатой; семейная комната; помещение с инженерным оборудованием.
Перед холлом устроен небольшой дворик, а со стороны восточного фасада — терраса, на которую есть выход из общей комнаты.
Отопление
Система пассивного прямого солнечного отопления (Direct Gain) включает в себя холл, объединяющий все помещения западного крыла, и верхнебоковые окна общей комнаты (клерестории). Солнечное тепло аккумулируется бетонной плитой пола и саманными стенами, разделяющими холл и комнаты западного крыла.
Комментарии