Проект пассивного солнечного дома представляет собой увеличенную модификацию небольшого дома из соломенных блоков Casa del Sol с добавлением дворика и гаража.

Внешний вид
Модификация
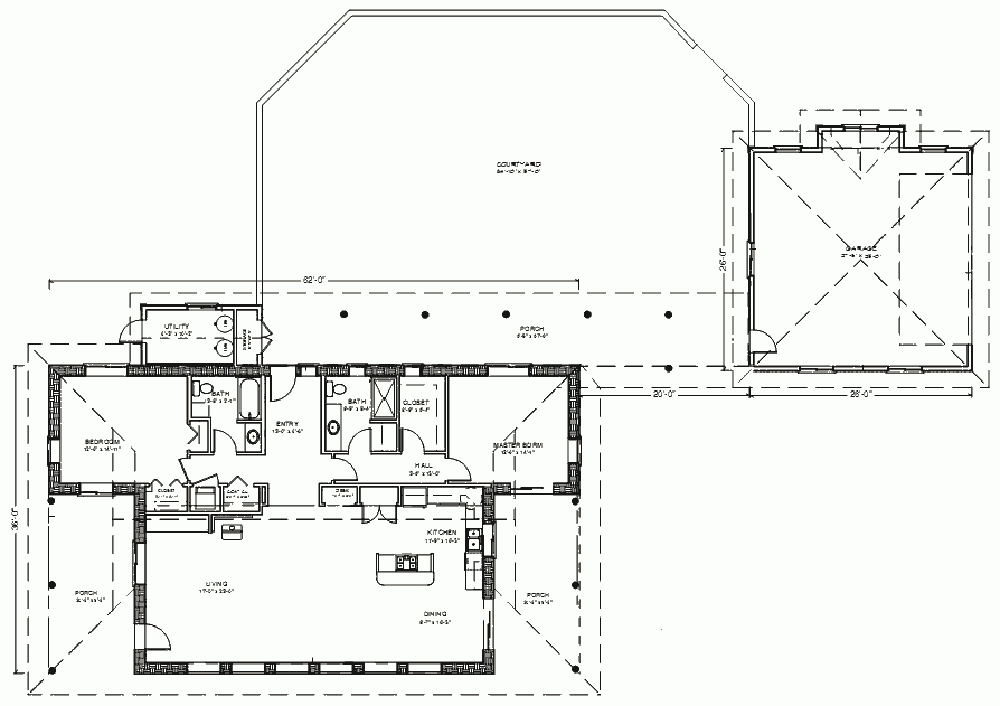
Площадь дома была увеличена до 176 м². С северной стороны находится небольшой дворик. К гаражу на 2 автомобиля площадью 62,8 м² из дома ведёт крытая галерея.
Планировка
В этом компактном одноэтажном доме расположены: большая общая комната, разделённая на зоны гостиной и кухни-столовой; 2 спальни; 2 санузла. Основной вход в дом выполнен с северной стороны.

План
Отопление
Система пассивного солнечного отопления — витраж южного фасада дома (Direct Gain).
В качестве резервного источника отопления используется дровяная печь, установленная в общей комнате.
Комментарии