Мансардный дом площадью 113м² из соломенных блоков с несущим деревянным каркасом.

Стоимость леса для каркаса 1500$ на весь дом. Отопление посредством камина и солнечных коллекторов.

Конструкция
Легкая конструкция, мелкозаглубленный фундамент, площадь кровли 155м².

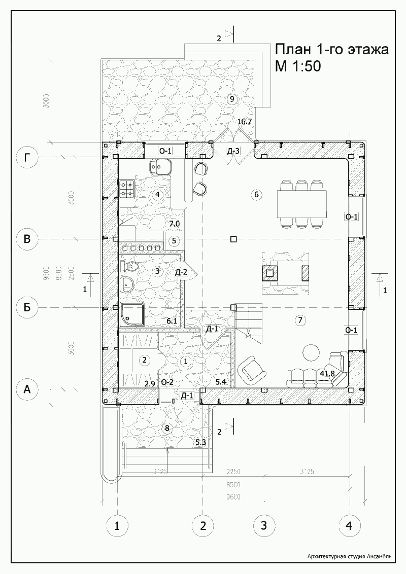
Планировка
В доме расположены: 4 спальни 2по12,1м², 9,4м² и 8,6м², большая гостиная 42м2, возможность размещения кабинета,

Проект разработан архитектурной студией Ансамбль.
Комментарии