Жилой индивидуальный дом предоставляет собой двухэтажное здание со скатной крышей и наружными стенами из деревянного клеёного бруса.




Конструкция
Внутренние стены деревянный каркас, заполненный минераловатной плитой и обшитый по желанию заказчика вагонной доской или гипсокартонными листами (под последующую отделку).
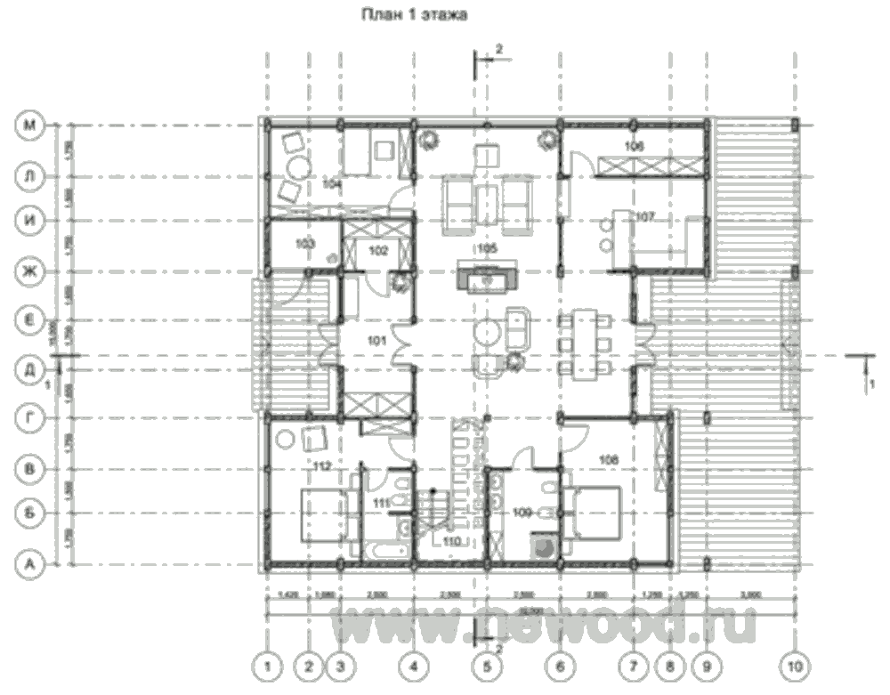
Планировка
На первом этаже расположены хозяйственные помещения (кухня, кладовая, гардероб, санузлы и котельная), спальни и большая гостиная объединяющая несколько функциональных зон: телевизорная, каминная и столовая.

Главный вход в дом визуально соединен с выходом на террасу, частично перекрытую навесом, внутреннего двора.

С первого на второй этаж ведет деревянная лестница, поднявшись по которой мы попадаем в приватную зону с детской комнатой и хозяйской спальней (функционально разделенную на гардероб и собственно спальную зону) со своими санузлами. Спальня и детская имеют свои балконы.
Комментарии