Небольшой уютный коттедж площадью 77,9 м², спроектированный американским архитектором д-ром Оуэном Гейгером (Owen Geiger), идеален для сельской местности.

Внешний вид
Конструкция
Стены дома запроектированы из мешков с землёй (Earthbags).
В более холодных регионах для возведения стен можно использовать соломенные блоки (Straw bale).
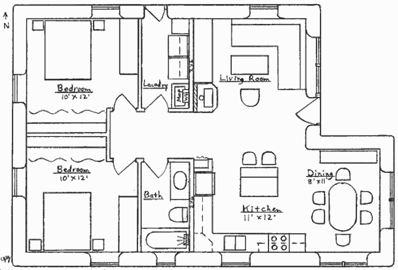
Планировка
В доме расположены: общая комната с зонами гостиной, кухни-столовой; санузел; постирочная; 2 спальни.

План
Источником отопления служит установленная в гостиной дровяная каминопечь.
Комментарии