Этот землебитный дом площадью 77,3 м², спроектированный американским архитектором д-ром Оуэном Гейгером (Owen Geiger), имеет мягкие плавные очертания.

Восточный фасад
Конструкция
В зависимости от региона строительства стены дома могут возводиться:
- из мешков с землёй (Eearthbags);
- соломенных блоков (Straw bale) ;
- монолитными (Cob).
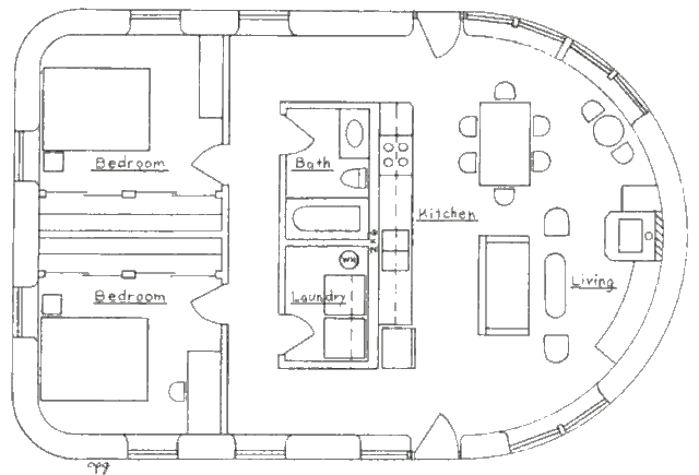
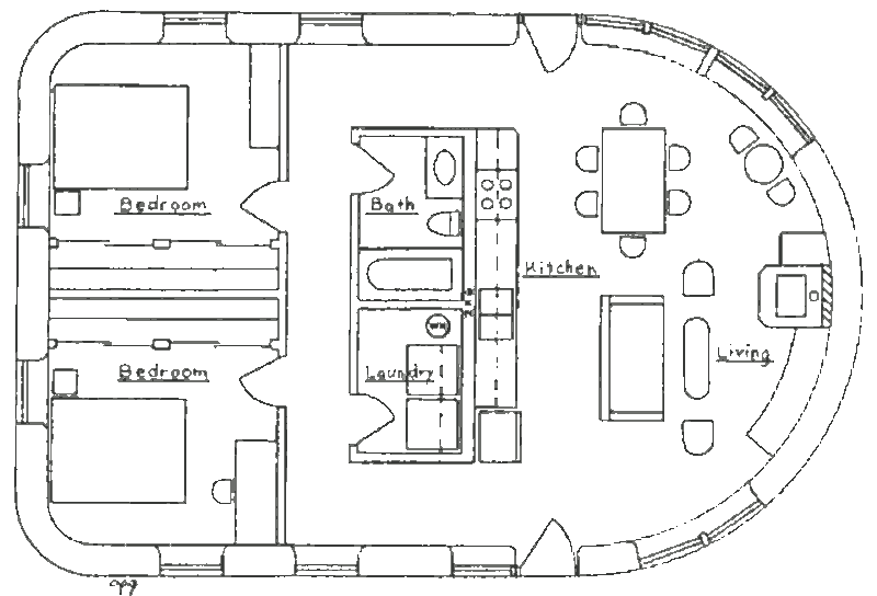
Планировка
В доме расположены: огромная полукруглая общая комната с зонами гостиной и столовой, 2 спальни. Оригинально островное решение блока, включающего в себя кухню, санузел, прачечную.

План
Отопление
Источником отопления дома служит установленная в гостиной дровяная каминопечь.
Комментарии