Перейти к основному содержанию
Mensh.ru

Main navigation

  • Конструкции
  • Системы
  • Энерго
  • Стили
  • Проекты
  • Участок
  • Разное
  • Доки
User account menu
  • Войти

Строка навигации

  1. Главная

Проект дома для уик-энда

Автор: mensh, 28 июля, 2003
Проекты домов
  • Свободная планировка

Проект этого маленького загородного дома был выполнен для участка сверхмалого размера (12 х 14 м), расположенного на крутом берегу красивейшего озера.

Маленький загородный дом для уик-энда, внешний вид

Несмотря на то, что семья заказчика планировала приезжать в дом лишь на уик-энды комфортабельность его вполне достаточна для круглогодичного проживания трёх человек.

Содержание

  • Описание маленького загородного дома
  • Планы этажей
  • Заключение

Описание дома

В доме доминирует общая двухсветная комната (28,45 м²), доходящая до внутренней поверхности слегка покатой вальмовой крыши.

Внутреннее пространство комнаты разделено по вертикали антресолью, выше и ниже которой образуются свободные объемы, придающие всей комнате необычайную и своеобразную пластичность, усиленную расположенной в комнате винтовой лестницей, связывающей все три уровня дома. Этот эффект еще больше подчеркивается применением различных материалов для отделки поверхностей, кирпичной стеной камина, наклонной крышей.

Под антресолью расположены: кухня (10,22 м²) с выходом на террасу (15,88 м²), ванная комната (3,04 м²), сауна (2,56 м²) и туалет (0,97 м²).

Две уютных спальни (8,77 м²) и (7,84 м²) на антресоли имеют выход на балкон, находящийся над террасой. Благодаря наличию внутреннего и внешнего балконов они имеют непосредственную связь с внешней и внутренней средой(общей комнатой).

В цоколе дома размещены: кладовая (5,32 м²) и хозяйственное помещение (13,03 м²) с системой автономной очистки стоков, и компостером туалета Clivus Minimus.

Планы этажей

Маленький загородный дом для уик-энда, план цокольного этажа

План цокольного этажа

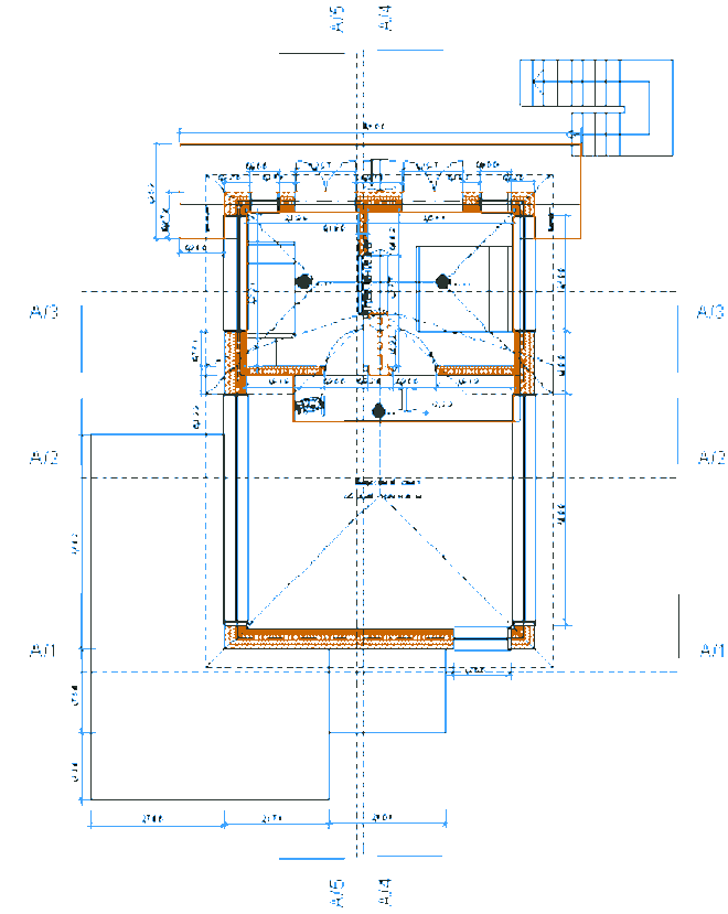
Маленький загородный дом для уик-энда, план первого этажа

План главного уровня

Маленький загородный дом для уик-энда, план антресольного этажа

План антресоли

Заключение

Гибкий свободный план, обилие света вызывают ощущение необыкновенного простора в этом маленьком и уютном загородном доме.

Комментарии

Последние материалы

  • Шале из соломенных блоков
    9 hours 58 minutes ago
  • Типы ветроустановок
    3 days 11 hours ago
  • Малый ветрогенератор
    4 days 10 hours ago
  • Генератор ветроустановки
    1 week 1 day ago
  • Учебник Основы экологической архитектуры, первая книга (pdf-версия)
    1 week 4 days ago

Последние комментарии

  • (Тема не указана)
    1 month 3 weeks ago
  • Строительство на лугу вижу и…
    1 year 6 months ago
  • На фото показано возведение…
    1 year 6 months ago
  • Мне он тоже нравится…
    2 years 9 months ago
  • От этого дома буквально…
    2 years 9 months ago
RSS feed

Secondary menu

  • ЧаВо

© 2003–2025 Олег Меньшенин mensh@yandex.ru