Маленький модульный суперизолированный каркасный коттедж площадью 30 м², установленный на заднем дворе, может быть использован для многих целей.

Внешний вид
Назначение коттеджа
Коттедж можно использовать как:
- дополнительное жилое пространство для растущей семьи;
- домик для престарелых родителей, нуждающихся в покое;
- жилье для сына или дочери, начавших самостоятельную жизнь;
- домашний офис.
Планировка
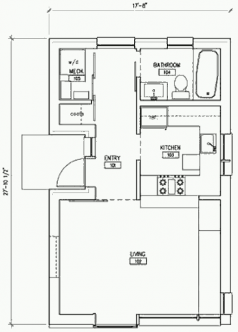
В коттедже расположены: общая комната, кухня, ванная комната, техническое помещение.

План
Энергопотребление
Благодаря суперизоляции стен, низкоэмиссионным стеклопакетам и компактному плану этот коттедж весьма энергоэффективен.
Дополнительно он может быть оборудован солнечным водонагревателем и фотоэлектрическими батареями.
Источник:Green Building Elements
Комментарии