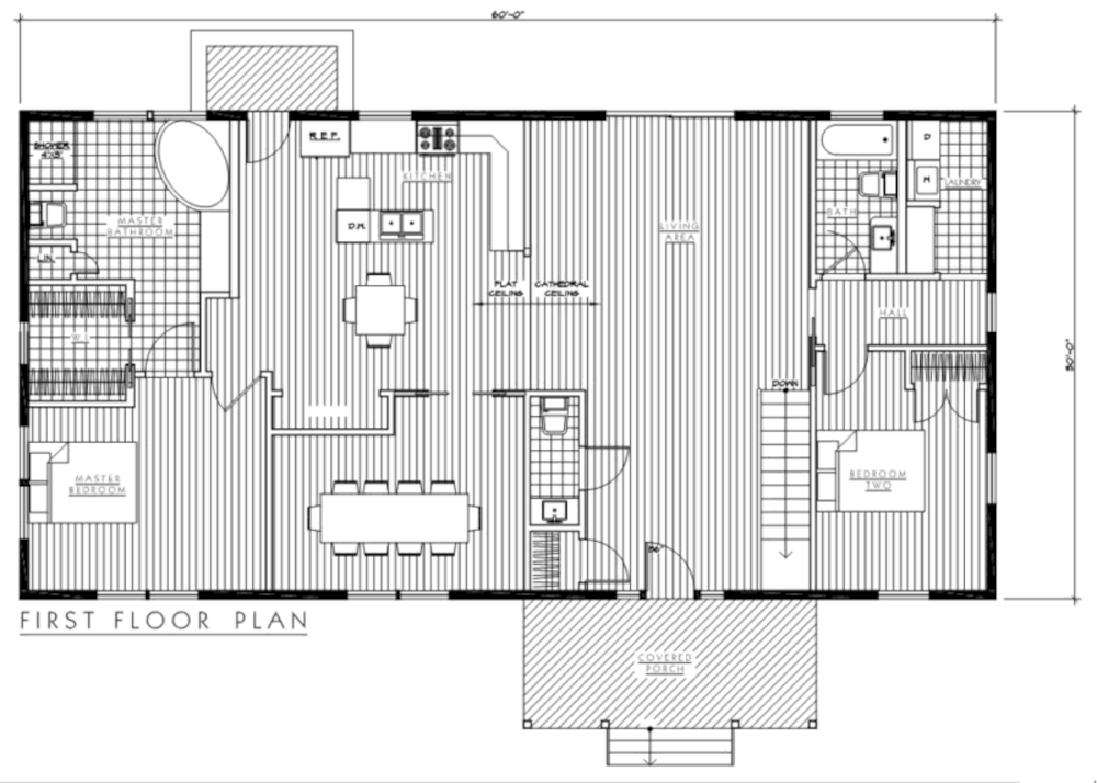
Компактный одноэтажный каркасный дом площадью 167,2 м², спроектированный Томасом Фоксом (Thomas Fox), имеет простой прямоугольный план.

Южный фасад

Западный фасад
Планировка
Планировка помещений свободная, огромная общая комната имеет сводчатое перекрытие.

План
В доме располагаются: большая кухня-столовая, отделённая от гостиной барной стойкой; отдельная столовая; 2 спальни с ванными комнатами, туалет в прихожей. В ванной комнате хозяев установлена также гидромассажная ванна.
Комментарии