Проект двухэтажного каркасного дома площадью 174,2 м² разработан Томасом Фоксом (Thomas Fox) для строительства на склоне южной экспозиции.

Западный фасад
По проекту фундамент дома свайный и под домом устроена парковка.

Северный фасад
Планировка
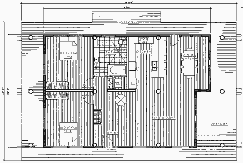
На первом этаже дома расположены: огромная общая комната, разделённая на зоны гостиной, столовой и кухни; две больших спальни; прачечная; ванная комната.

План первого этажа
На втором этаже находится спальня хозяев с гардеробными и ванной комнатой. Из спальни устроен выход в патио, расположенное на крыше первого этажа дома.

План второго этажа
Защита от перегрева
Террасы и перголы буквально опоясывают дом, защищая помещения от перегрева в жаркие дни.
Комментарии