Проект одноэтажного каркасного дома площадью 221,9 м² был выполнен архитектором Томасом Фоксом (Thomas Fox) в стиле ранчо.

Внешний вид
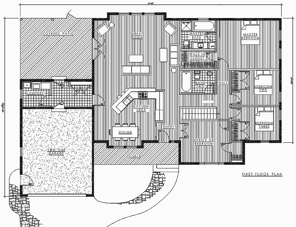
Планировка
В доме располагаются: огромная общая комната, зонированная на гостиную с выходом в патио и кухню-столовую; 3 спальни; кабинет; 2 ванных комнаты.

План
К дому пристроены: гараж на 2 автомобиля и патио, между которыми находится помещение с прачечной и инженерным оборудованием.
Вход в дом выполнен с террасы.
Комментарии