Проект горного солнечного дома был разработан американским архитектором д-ром Оуэном Гейгером (Owen Geiger) для возведения в суровых горных условиях.

Внешний вид
Конструкция
Стены коттеджа в соответствии с проектом возводятся из мешков с землёй по землебитной строительной технологии Earthbags с суперизоляцией соломенными блоками (Straw bale).
Планировка
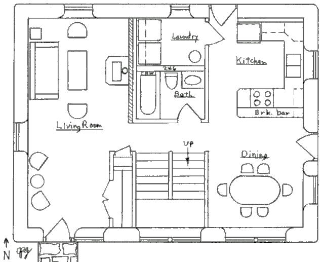
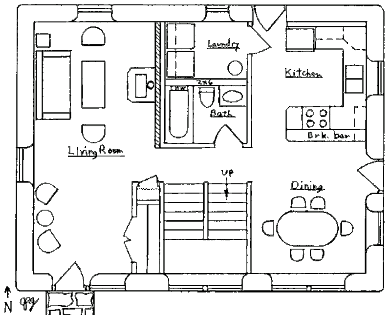
На первом этаже дома площадью 59,3 м² располагаются: гостиная, столовая, кухня с барной стойкой, санузел, прачечная.

План первого этажа
На втором этаже дома площадью 59,3 м² находятся: 3 спальни с гардеробными комнатами, санузел.

План второго этажа
Отопление
Обильная площадь остекления южного фасада — система пассивного солнечного отопления с прямым обогревом (Direct Gain). Она в сочетании с большой термической массой стен и пола позволяет накапливать солнечное тепло и стабилизировать температуру в помещениях.
Дополнительным источником отопления коттеджа является дровяная каминопечь, установленная в гостиной.
Комментарии