Фермерский экологический солнечный дом в викторианском стиле был спроектирован Марком Клипшамом (Mark Clipsham) для строительства из старых стальных зерновых бункеров.

Вид с юго-востока

Вид на дом с северо-востока
Конструкция
В основе строения — 2 бункера диаметром 5,4 м, объединённых трёхэтажным каркасным объемом, в котором расположены лестничный холл и часть помещений.
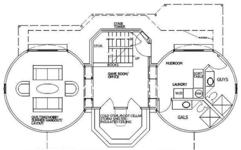
Планировка
На нижнем уровне дома, имеющем площадь 80,3 м², размещены: прачечная, 2 совмещённых санузла, кладовая, офис, игровая комната.

План подвала
На первом этаже дома площадью 80,3 м² находятся: большая кухня с баром и буфетной, туалет, столовая с выходом на террасу, гостиная.

План первого этажа
На втором этаже дома площадью 80,3 м² расположены: 2 спальни, библиотека, большая ванная комната.

План второго этажа
Чердак имеет площадь 13,7 м².
Отопление
Пристроенная к южному фасаду дома солнечная теплица площадью 33,4 м² выполняет функцию основной отопительной системы дома (Isolated Gain).
Дополнительным источником тепла является дровяная каминопечь.
Электроснабжение
На крыше солнечной теплицы размещены фотоэлектрические батареи.
Комментарии