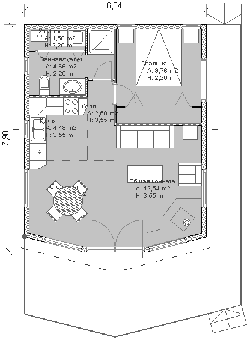
Маленький одноэтажный дом для уик-энда, имеющий размеры в плане 7,98 х 6,34 м может быть построен в районах со значительным количеством осадков и высоким уровнем грунтовых вод. Фундамент дома столбчатый, а дощатая терраса приподнята на 0,35 м над землей.
Рис. 1. Общий вид.
Рис. 2. План.
Основную площадь в доме занимают:
- общая комната 12,54 м2 с каминопечью;
- столовая 8,51 м2;
- кухня 4,48 м2;
- холл 2,5 м2.
- спальня 9,76 м2 с выходом на террасу;
- совмещенный санузел 4,66 м2;
- подсобное помещение 1,5 м2.



Комментарии